防音スタジオ(70㎡)付き戸建て住居4DK 専有面積計146㎡ 西新井大師前駅近くの2階建て一軒家、足立区西新井5-16-6。
建物全体の基礎および外壁・内壁の大規模工事と同時に1階防音工事を実施、奥行10メートルある1階はDr35のスタジオ仕様。2階は3DK(74㎡)をリニューアル、給排水管・ガス管・キッチン設備を一新、全ての11の窓が2重で断熱性能を向上させています。
照明は全てLED仕様、全室エアコン、食洗器付きIHシステムキッチン付帯。
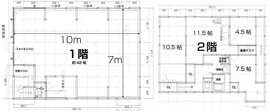
1階スタジオ仕様(1Room42畳)
窓4、出入口2がありながらもDr35の防音を実現、開口部を更なる防音仕様にできるレールも付属するので24時間の音出し可能、あらゆるクリエイティヴワークに対応します。
窓は2枚ガラスの二重窓 計4枚ガラスで、入口から奥行10メートル横幅7メートル天井高2.9メートルの広々スペースのカーペット敷スタジオです。
2階住居仕様
3DK(74㎡) ダイニングと居室を合わせると22畳のLDKとして使用できます
キッチンは、IHの3口コンロ、食洗器、タッチレス水栓がついたL型システムキッチン、クローゼット多いです。
近隣
人気のオーケー・スーパーが徒歩4分、その他コンビニ、レストラン、総合病院、公園、ドラッグストア、サイクルショップが徒歩5分圏内。
近隣に公園多数、ガスト、くら寿司、マクドナルド、トラットリア、行列焼肉店など、レストラン、ファストフード、ラーメン店、大型銭湯、有名牡丹園が徒歩圏にあります。
交通
①東武伊勢崎線大師線「大師前」駅徒歩14分「西新井駅」25分
②日暮里舎人ライナー「西新井大師西」駅徒歩15分
東武伊勢崎線・北千住駅より4駅目(急行・準急で1駅目)の西新井駅から一つ目 大師前駅が至近。「大師前」駅を降りグーグルマップで住所をタップすると、徒歩14分と表示されますが、大師の境内内を通る道は12分、境内横路地を歩くと13分と、近道は多いです。
西新井大師の広大な敷地の北側に位置する閑静な住宅街、新西新井公園が目印です。
東武線次駅の西新井駅は、日比谷線・半蔵門線が乗入れる複々路線駅、上野・秋葉原・銀座・六本木・大手町・青山・渋谷・恵比寿各駅まで乗換え無し。また、4駅目(急行・準急は1駅目)の北千住駅は千代田線、JR常磐線、つくばエキスプレスが乗り入れる大型ターミナル駅です。
日暮里舎人ライナー「西新井大師西」駅まで徒歩15分、山手線・千代田線乗換えの西日暮里駅まで乗車11分です。




















